CCM253变送器-余氯基本调试
CCM253变送器+余氯基本调试
1安裝
CCM253共有3种安装方式,如下:
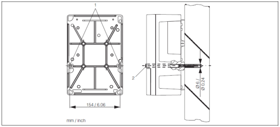
1.1墙式安裝
位置1的两个06孔用螺钉固定在墙上。出厂时这两个孔用黑色堵头(位置2 )堵住。

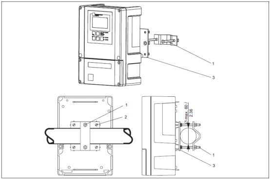
1.2管道安装
可使用竖直或水平管道安装。安装时使用变送器后面的四个M5螺孔(位置2 ) , 管道最大直径为060。

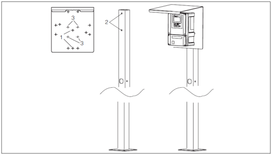
1.3气候防护罩安装

注:管道安装需要额外订购安装附件,气候防护罩需作为附件单独订购。变送器如果安装在室外露天环境,建议选用气候防
护罩以保护仪表。
1.4流通式安装支架的测量系统示意图

1 CCA250流通式安装支架
2介质入口
3感应开关,流星监控用
4 pH/ORP传感器的安装位置
5余氯测量传感器
6介质出口
7取样口
8测量电缆
9变送器
2接线

2.1连接CCS140/141/240/241余氯和二氧化氯传感器
1)把随机提供的对应接线图贴到接线端子上。
2)氯或二氧化氯传感器为一体式电缆,绿色接11端子,黑色接12端子, K接90端子,红色A接91端子,屏蔽接S端子。
3) pH传感器测量和参比信号分别连接"pH” 和"REF”端子;棕色等电势线连接"PA/PM” 端子。
4)标记"NC"和未标记的端子不接。
5) 220VAC电源接到L1和N端子; 24VDC电源接到+和-端子。
6)第一 路电流输出(余氯或二氧化氯)接到31、32端子,第二路电流输出(温度或pH ,可选)接到33、34端子。 电流输出为有源输出。
2.2连接CCS120总氯传感器
1)把随机提供的对应接线图贴到接线端子上。
2)总氯传感器为TOP68接头不带电缆,需选用CPK9-N*A1B电缆配合使用。黄色和白色接11端子,白色接90 ,色接12端子,绿色接85 ,棕色接86。屏蔽接S端子。
3)标记"NC"和未标记的端子不接。
4) 220VAC电源接到L1和N端子; 24VDC电源接到端子。一路电流输出 (总氯)接到31、32端子,第二路电流输出(温度,可选)接到33、34端子。电流输出为有源输出。
注:须保证所有的缆塞拧紧、密封。
3按健功能
3.1基本按键功能描述

3.2键盘锁定和解锁

3.3继电器操作

4设置
4.1传感器设置
按“”键,输入密码*22。在"SETUP1-菜单下的"A1"菜单选择对应传感器。

在"SETUP 1”菜单下的"A2”菜单选择相应的单位。

4.2 pH补偿设置
如果系统带pH传感器,在"SETUP 2”菜单下的“B2”菜单选择Manu。

如果系统不带pH传感器,在“SETUP 2"菜单下的"B2”菜单选择Manu。

并在“SETUP2"菜单下的“B3" 输入实际水样的pH值。

4.3量程设置
在“Current Output"菜单下,设置4- 20mA对应量程。在O1中选择电流输出通道, 仪表双通道输出时有OUT1、OUT2选择,单通道输出时直接进入下一项。OUT1作为氯的电流输出; OUT2 作为温度或.pH的电流输出。

4.4变送器复位
在"Service" 菜单下的"S9"菜单,选择"Facty"复位变送器。

5标定
按"CAL”键,输入密码“22”。在
"Calibration"菜单下完成斜率标定。
1)在“C11"菜单输入实验室测得的CI2的值,按“CAL”键。
2)稳定后自动进入"C13” 菜单,显示标定后的斜率。
3)按"CAL"键,"C14"菜单显示标定通过或报警。
4)按"CAL"键,"C15” 菜单选择是否保存标定数据,还是放弃,还是重新标定。
6常见故障代码

7维护传感器
如果膜片污染,需清洗传感器。
■每季度或每年更换一次电解液,具体间隔视工况而定。
定期更换膜片,间隔视工况而定。
■必要时标定传感器。
7.1清洗传感器
1)把传感器从流通式支架中取出。
2)使用自来水轻轻冲洗,或者放入1-5%的盐酸中浸泡几分钟。
7.2更换膜片及电解液
1)把测量腔室(位置1 )拧下。
2)拧下前端的膜片帽(位置3) , 更换膜片(位置量腔室加入7-8ml电解液,直到液面达到测量1内螺纹。.
4)把测量腔室放到平坦的桌面敲打几下,去除电解液中的气泡。
5)把盛满电解液的测量腔室拧到传感器上。多余的电解液将流出。

注意:
电解液的寿命为1年,变黄的电解液不能被使用。
电解液瓶用完请拧紧防止剩余电解液被氧化。
7.3保存传感器
停机时如果能够保证流通支架中有水,则传感器可以怀取出支架;如果不能保证,则须拆下传感器放入盛放有湿润海绵的保护帽中。
7.4激活传感器
传感器长时间(> 1周)处于无氯介质中将导致其失效,无响应或响应缓慢。此时需对传感器进行激活。把传感器从支架中取出,准备13%次氯酸钠(针对CCS140/141)或二氧化氯(针对CS240/241 )放入烧杯中。把传感器放到烧杯液面上方5-10mm处,待传感器测量nA信号将上升到几百nA后,再持续20分钟。

友情链接
服务范围
工业自动化产品专业代理,品质保证
技术领先,价格优势,报价迅速,产品全面
技术选型,产品报价,销售安装,工程售后,为您提供工业自动化一站式服务
自动化专业销售
Tel. 19925440503(微信同号) WhatsApp: +86 18576429229
联系工程师
扫码添加WhatsApp
