FMR50雷达液位计安装和接线注意事项
FMR50雷达液位计安装和接线注意事项
一、安装注意事项
1. 安装位置与环境要求
· 波束角避开干扰物:
确保波束范围内(波束角α:40mm天线为23°,80mm为10°,100mm为8°)无挡板、加热盘管等干扰物。

· 塑料容器特殊要求:
非金属罐(如GRP)需确保波束范围外无金属管道/楼梯,否则禁止安装。
2. 安装方式与结构
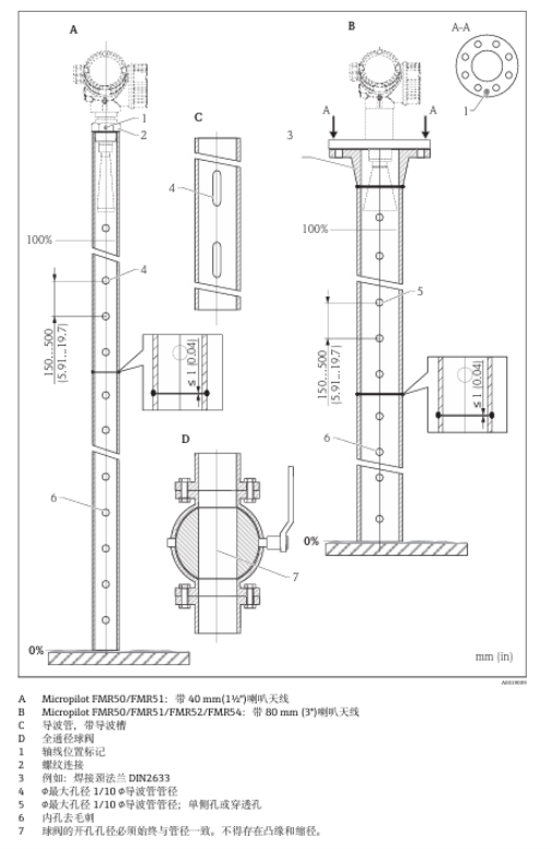
· 导波管安装:
o 管径需均匀,内壁光滑(表面粗糙度≤6.3μm),焊缝需精准对齐。
o 导波槽夹角需为180°(非90°),裂缝≤1mm。

· 旁通管安装:
管径需匹配天线口径,罐体连接处±20cm内精度可能降低。
· 带保温层的罐体:
保温层厚度不得超过设备颈部,避免电子部件过热(文档6.6)。
3. 机械调整
· 旋转变送器外壳:
使用扳手松开螺丝后旋转外壳(最大扭矩:塑料1.5Nm,金属2.5Nm),便于操作。
· 旋转显示单元:
拔出显示模块旋转至所需角度(8×45°),注意电缆需嵌入外壳间隙。
二、接线注意事项
1. 电气安全规范
· 接地要求:
o 保护性接地(PE)必须连接至电源,外部接地端需接工厂接地系统。
o 警告:断开电源前禁止断开接地连接。

· 防爆区域:
需符合《安全指南》(XA),过电压保护单元需通过DIN EN 60079-14认证。
2. 接线操作步骤
· 接线端子分配:
o FOUNDATION Fieldbus:端子1-2为供电,3-4为信号。
o 屏蔽层必须接专用接地端子(文档7.2.2)。
· 电缆规格:
o 横截面积0.5-2.5mm²(20-14AWG),高温环境(≥60℃)需耐温(TU+20K)。
· 打开接线腔盖:
用六角扳手逆时针旋转固定卡扣,检查密封圈完整性。
3. 仪表插头与接口
· M12/7/8°插头:
针脚分配需严格按文档说明,避免极性错误。

三、安全与认证要求
· 危险区域安装:
需检查设备铭牌的防爆认证(如ATEX、IECEx),并严格遵守《安全指南》。
· 过电压保护:
易燃液体测量必须内置或外接OVP单元(如HAW562/569),选型代号NA。
四、安装后关键检查项
1. 机械完整性:
o 确认法兰/螺纹紧固(扭矩:螺纹连接35Nm),密封圈无损伤。
2. 电气验证:
o 测量供电电压是否符合铭牌(9-32V DC),接地电阻≤1Ω。
3. 功能测试:
o 上电后检查显示单元是否正常,记录参考曲线用于诊断。
重要提示:操作前务必阅读文档第2章《基本安全指南》,涉及人员资质、防爆要求等法律责任条款。
通过上述结构化要点,可系统化规避安装与接线风险,确保FMR50可靠运行。
友情链接
服务范围
工业自动化产品专业代理,品质保证
技术领先,价格优势,报价迅速,产品全面
技术选型,产品报价,销售安装,工程售后,为您提供工业自动化一站式服务
自动化专业销售
Tel. 19925440503(微信同号) WhatsApp: +86 18576429229
联系工程师
扫码添加WhatsApp
